Due to the health concerns created by Coronavirus we are offering personal 1-1 online video walkthough tours where possible.




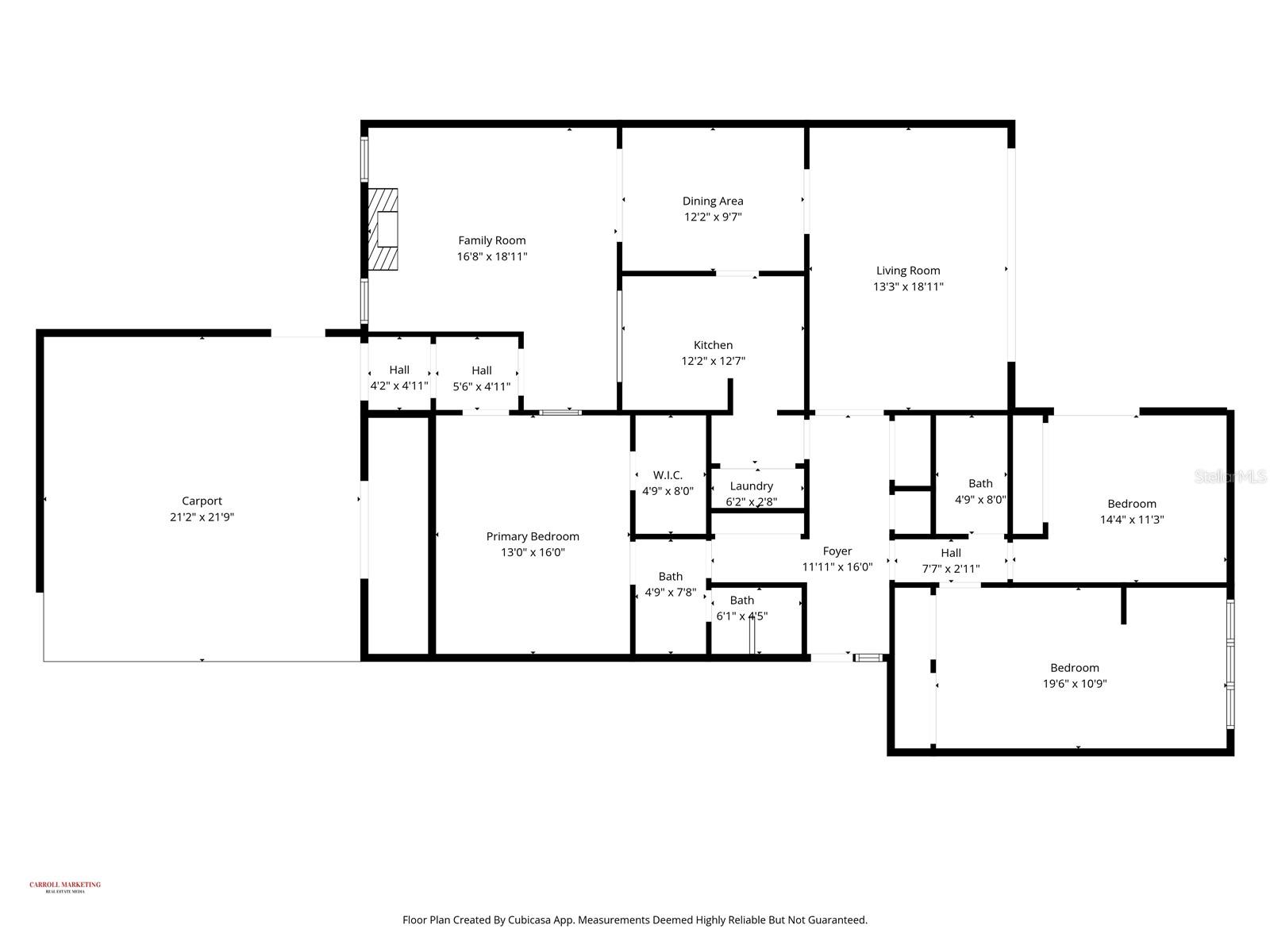
Under contract-accepting backup offers. This is truly a rare find in Carrollwood Village--3 Bedroom,2 bath ONE STORY condo. approx 2000 SQ ft! One of the largest in the complex. Great privacy being an end unit with only1 adjoining wall plus 2 car carport. Enjoy the private Beautifully landscaped courtyard and proceed to the spacious entry leading to the expansive formal Living Room and Dining room with a full wall of sliders to the screened covered patio. Note all Plantation shutters to the exterior, Crown molding in all rooms except for the huge added Family room. All doors were replaced with solid 6 panel wood doors (22 doors) All glass windows and doors treated with window film for heat control, UV protection and safety (breakage) Convenient split Bedroom plan with large bedrooms. The Family Room has 4 skylights, custom media cabinet (stays) 10 recessed lights. The kitchen at the Hub of the home has 8 ft ceilings with recessed lighting -granite counters, all newer stainless appliances, LG counter depth refrigerator, double oven and Microwave, Fisher Paykel double drawer dishwasher. The huge primary Bedroom has a large walk-in closet (8X 5) plus sliders leading to center patio. Both Bathrooms remodeled: gutted, new cement drywall and tile. Glass shower doors, cast iron tub-tiled from floor to ceiling. You can enter the home through the carport undercover. Laundry closet with LG dryer and 6 Month GE Washer. The North Meadow Cluster Houses is an established, tranquil, and impeccably maintained village located on the Carrollwood Private Golf Course. 60 units and 17 acres with its own private pool. Note the large 16 x 4.5 ft storage room adjoining the carport w/ shelving and peg board Also, there is a large 20 x 6 ft floored attic storage w/heavy duty pull downstairs above carport lighted. Easy walk to the private Country Club where you’ll find a state-of-the-art fitness center. Social, Golf, and Tennis memberships are available. There is a restaurant for fine and casual dining, an Olympic size swimming pool & tennis.Carrollwood Village itself has many amenities --parks, gardens, playgrounds, tennis, pickleball and basketball courts! Just 20 min to Tampa International, USF, Moffit, and approximately 25 minutes to Downtown! Enjoy shopping at nearby Publix, Fresh Market, or Whole Foods! There are abundant restaurant choices, entertainment, Carrollwood Cultural Center, and miscellaneous boutiques. A walking neighborhood with miles of sidewalks, well-lit streets, and easy access to miles of pedestrian and cycling trails. ** All exterior maintenance and reserves for the roof, exterior paint, water, sewer, cable and Homeowners Insurance (Exterior Only) are included in the MONTHLY CONDO fee.
| 4 days ago | Listing updated with changes from the MLS® | |
| 4 days ago | Status changed to Pending | |
| a week ago | Listing first seen on site |

Did you know? You can invite friends and family to your search. They can join your search, rate and discuss listings with you.